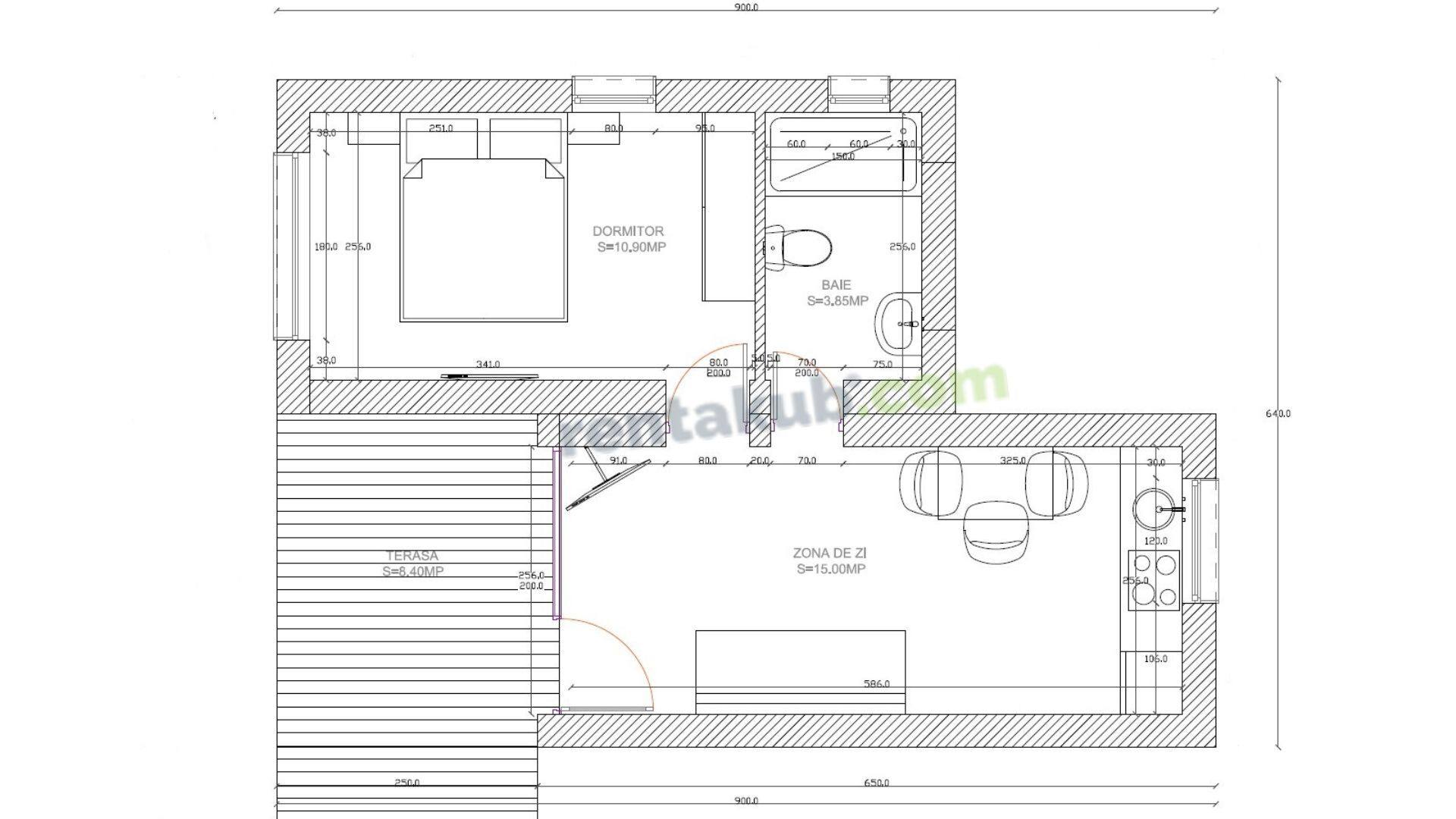
34

Superficie costruita

34

Superficie utile

34

Numero di camere da letto

34

Numero di bagni

Casa vacanze in pannelli SIP – Modulo Dream

La nostra attenzione per l'architettura montana si riflette in questa casa vacanze, progettata per soddisfare le esigenze dei più esigenti grazie alla superficie e ai materiali utilizzati.
I materiali impiegati sono di qualità superiore, di livello premium, garantendo un comfort a 4 stelle per i vostri turisti. Il prodotto è omologabile dal Ministero del Turismo, quindi può essere utilizzato anche come chalet da affittare.

Richiedi un'offerta ora!

Progetti simili

Contattaci!

Il team di Happy Home Corporation è pronto a rispondere alle domande che hai sulla tua futura casa!