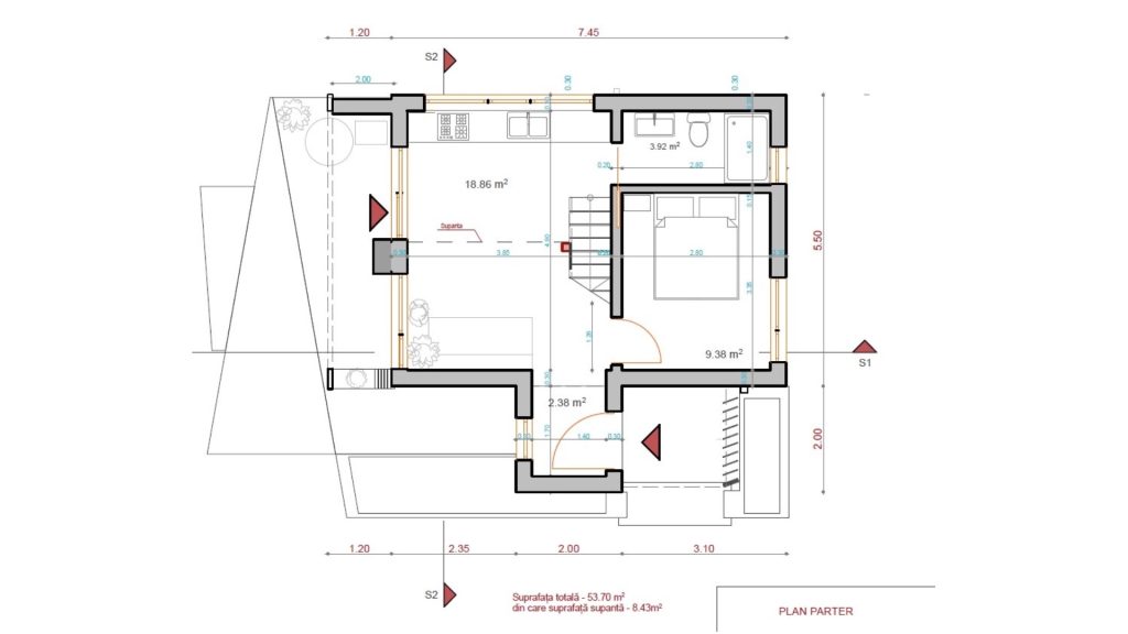
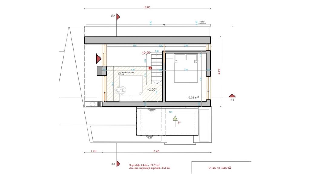
34

Superficie costruita

34

Superficie utile

34

Numero di camere da letto

34

Numero di bagni

Casa vacanze in pannelli SIP – Nordic Dream

Il nostro orientamento verso l'architettura montana, questa casa vacanza è progettata per soddisfare le esigenze dei clienti più esigenti grazie alla sua superficie e ai materiali utilizzati.
I materiali impiegati sono di alta qualità, premium, garantendo così ai vostri ospiti un comfort da 4 stelle. Il prodotto è omologabile dal Ministero del Turismo, quindi può essere utilizzato anche come una cabina da affittare.

Richiedi un'offerta ora!

Progetti simili

Contattaci!

Il team di Happy Home Corporation è pronto a rispondere alle domande che hai sulla tua futura casa!