Servizi
Timber SIP Plus
TIMBER SIP
Struttura SIP
About us
Portfolio
Chi siamo?
Blog
Progetti
Progetti di case
Capsule
Info e contatti
Servizi
- TIMBER SIP PLUS
- TIMBER SIP
- SIP 100%
Portfolio
Chi siamo?
Blog
Progetti di case
Case vacanza
Capsule
Info e Contatti
34
Superficie costruita
34
Superficie utile
34
Numero di camere da letto
34
Numero di bagni
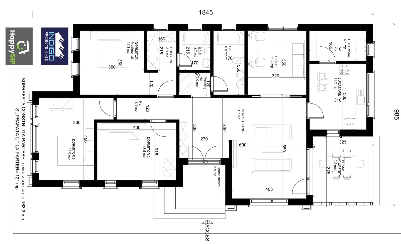
Casa ROMA
Una casa classica per una famiglia con almeno 2 bambini. Al piano terra si trova una camera matrimoniale con bagno privato, 2 camere per i bambini servite da un altro bagno e una camera per gli ospiti che può essere utilizzata come ufficio.
Richiedi un'offerta ora!
Progetto richiesto:
Nome e Cognome:
*
Indirizzo mail:
*
Numero di telefono:
*
Indirizzo:
Progetti simili
Related products
Casa CLEOPATRA
Casa OCTAVIA
Casa AUSTRIACA
Casa BUNGALOW
Contattaci!
Il team di Happy Home Corporation è pronto a rispondere alle domande che hai sulla tua futura casa!
Info e contatti
Contattaci su WhatsApp!