La Soluzione Perfetta per Famiglie Numerose
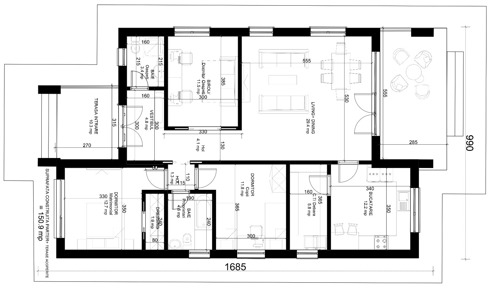
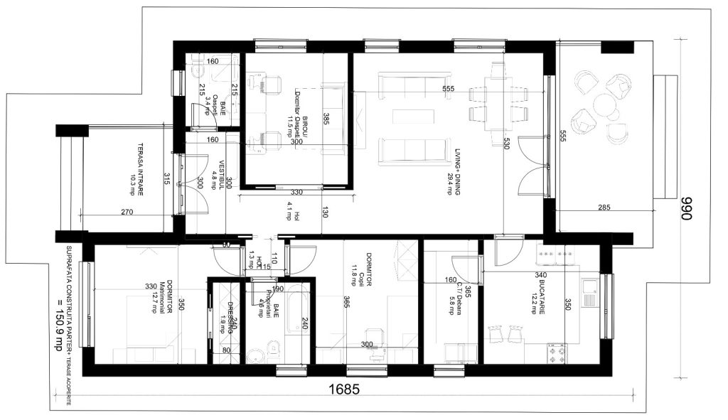
Casa Cleopatra è una classica abitazione ideale per famiglie numerose. Sviluppata su un unico piano, questa casa offre
3 camere da letto, un bagno completo e un bagno di servizio.
L'accesso alla zona giorno avviene attraverso un corridoio che separa le camere da letto. La zona giorno è composta da un ampio soggiorno con sala da pranzo e una cucina chiusa, perfetta per momenti di convivialità e per cucinare in totale comodità.
Caratteristiche Principali:
- Superficie utile: Spazi ben distribuiti per garantire comfort a tutta la famiglia.
- 3 camere da letto: Ideali per ospitare tutti i membri della famiglia.
- Bagno completo e bagno di servizio: Comodità e funzionalità per le esigenze quotidiane.
- Cucina chiusa: Privacy durante la preparazione dei pasti.
Ottima per creare ricordi indimenticabili con la tua famiglia. Contattaci per maggiori informazioni e per scoprire come questa casa può diventare la tua nuova abitazione!